A MODULAR PACIFIC HEIGHTS RESIDENCE
An Introduction
Good design matters. Reimagined by award winning architect Julie Dowling of Dowling Studios, this modernist residential compound is a triumph of architectural sophistication and multi-functional living. The five-bedroom main residence is elegantly planned over four levels and delivers panoramic views from one of San Francisco’s most dramatic living rooms. Additionally, the property’s garden cottage offers generous space for an important art collection, family office/philanthropy HQ, or a second stand-alone residence. Bordering San Francisco’s Pacific Heights neighborhood, this residential offering enjoys a prime location, panoramic views, and an inspired modernist design. Meeting today’s hybrid lifestyle needs, 2446-50 Green Street provides exceptional solutions for the global transitional moment.
Property Details
Main Residence
Originally designed and constructed in 1959, the property’s Green Street building is decidedly founded in the principles of International Style architecture. Completely reimagined in 2013, the striking elegance and balance achieved along this gracious hillside location signals a contemporary lifestyle within. Thoughtfully arranged over a four level-reverse plan, the top floor is crowned by a dramatic 13’ glass paneled living room with unobstructed views of the San Francisco bay and the rolling cityscape. A walkout balcony, fireplace, and walnut floors accent this principal room. A step-up to the open plan formal dining provides a intimate setting for entertaining. The kitchen is clad in gleaming white cabinetry, marble counters, and an island with work station/sink and counter seating. The south terrace, immediately accessed from the kitchen, is bathed in natural light with an inviting seating arrangement with advantageous views of Pacific Heights, Russian Hill, and the downtown skyline. A top-of-the-line gas grill and cook station completes the terrace. A stairway up leads to an exercise weight/yoga area with a wall mounted television, which exits to a spacious roof deck with built-in bench seating and expansive panoramic views of the city, Alcatraz, and the bay.
Level three is comprised of the master bedroom and two additional bedrooms. The master suite has a sanctuary-feel and connects to a private south terrace. The master bath has separate vanities on either side of a soaking bathtub and a separate shower. Spacious closet systems complete this bedroom. Arranged on the opposite side of this level are two adjacent bedrooms that share a full bath. Laundry room on this floor.
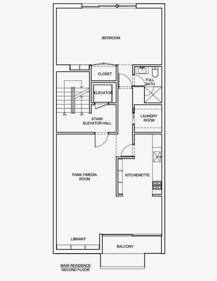
Guest Apartment
Level two is currently programmed for casual living and entertainment. Seating areas couple as spaces for large screen movie watching and a reading area that takes advantage of the built-in library. A gaming area connects to the home’s third south terrace. The kitchenette provides a convenient location for cooking snacks and small meals. A large bedroom with seating area, garden outlooks, and bath completes this level.
Entry Level and Studio
The entry level is enhanced by gallery wall-mounted displays and art collection shelving. At the rear of this level is a grand studio apartment with seating area, full bath, and enchanting interior garden scenery. Direct access to the secure two car side-by-side garage, residence elevator, and main staircase.
Garden Cottage
This highly valued aspect of the property is accessed from a walkway connected to the main residence or from a private entrance at the rear of the property. Completely redesigned for flexible live/work opportunities, this contemporary renovated space is loft-like in feel. Most recently used as a professional art gallery, the space meets the current trend for WFH opportunities. This exciting space is perfect for professional needs, family office/philanthropy HQ, or an additional stand-alone residence. A fully equipped kitchen and one and one half baths make this a fully independent feature of the property. Architectural plans are available to connect the unfinished level below. An uncovered parking pad for two cars is directly accessible by a gated stairway from the cottage.
International Style Modernist Panoramic View Residence
Modular Residential Compound with Primary Residence & Garden Cottage
Main Residence - 3 Bd. 2.5 Ba. 2pkg.
Reverse Plan with 13’ Floor to Ceiling Windows in View Living Room
South View Terrace & Roof Deck
Guest Apartment - 1 Bd. 1Ba.
Loft Garden Cottage - 1 Bd. 2pkg.
Unique Opportunity for WFH Office, Family Office/Philanthropy HQ, or Stand-Alone Residence
Exceptional Versatility for Today’s Flexible Live/Work Lifestyle
Elevator to All Levels, 2 Car Garage
Additional 2 Car Parking for Cottage
Main Building: 4,900 sq.ft.+/-
Garden Cottage: 1,704 sq.ft+/- (finished) and 996 sq.ft.+/- (unfinished)
Sophisticated Video/Motion Perimeter and Interior Security
2446-50 Green Street

